Bedford Green House I. Bronx

Bedford Green House is Project Renewal’s two-phase development in the Bedford Park area of the Bronx. The twin housing project was envisioned as a sustainable, socially integrated, mixed-population and income community bolstered by biophilia-inspired amenities. Guided by active and fully accessible design principles, the building plan promotes socialization, safety, and healthy living practices that connect residents to the therapeutic benefits of the natural world.

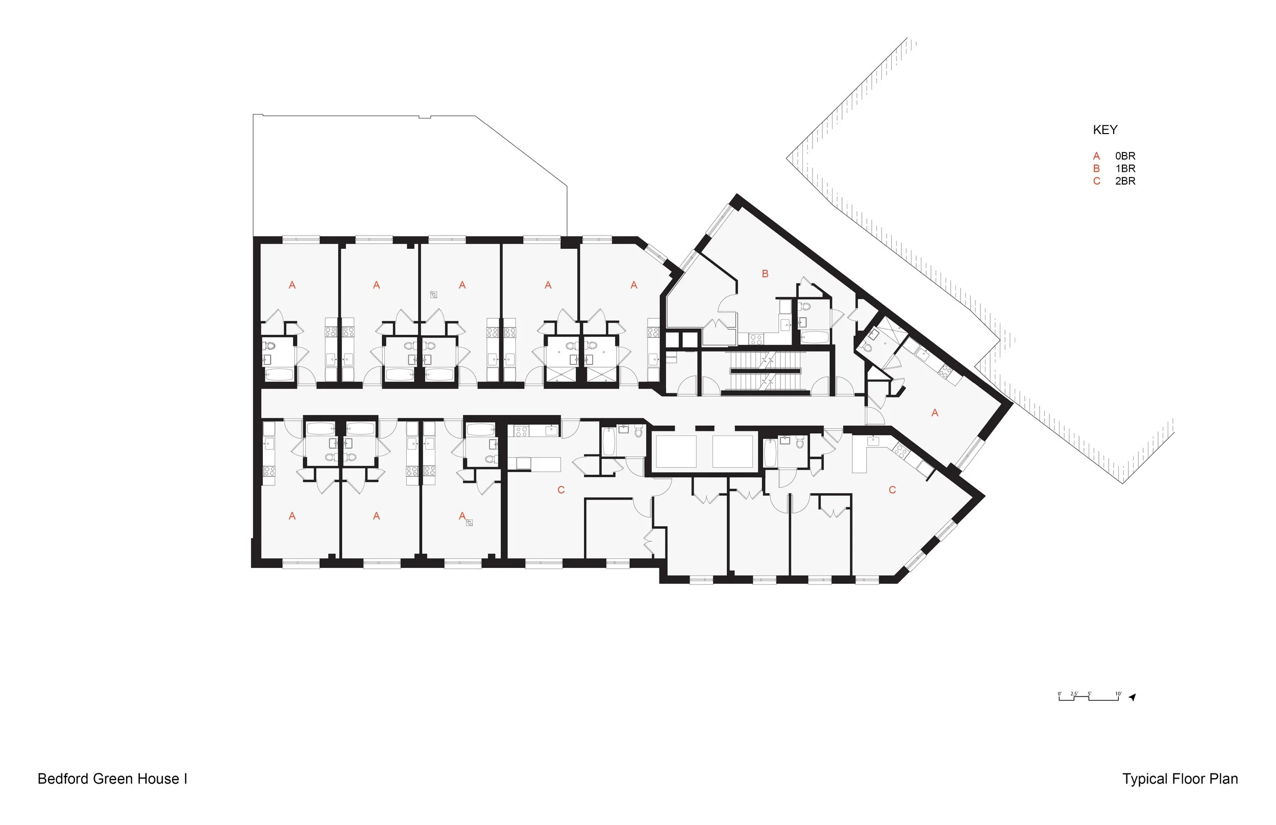
The recently completed first phase on Creston Avenue is a 13-story, 84,000 SF building providing 118 permanent, affordable, and supportive apartments. Over half of the units are dedicated to formerly homeless individuals and families, households impacted by mental illness, and people living with HIV/AIDS. To encourage interactions between residents, the community room, laundry room, and supportive offices are grouped together on the third floor and have views and direct egress onto the rear courtyard. While supportive offices are positioned at the end of the hall for discrete access, apartments for the different populations are distributed throughout the building to prevent population siloes and strengthen community. At the rooftop terrace, tables and benches support outdoor gatherings and a 1,500 SF aquaponic greenhouse hosts horticultural therapy and urban farming programs. The playground at the front yard is open to both residents and the wider community.

To breakdown the scale of the 13-story building, the mass is articulated in two components. Along Creston Ave the building is clad in textured, dark blue-grey brick, complementing the dramatic presence of the bedrock outcropping incorporated at the base. As the street curves into the intersection with Minerva Place, the façade shifts into light grey EIFS patterned with an over-scaled accent color that creates the illusion of the upper mass disappearing into the sky.

The building is certified LEED Silver and exceeds both Energy Star Multifamily High Rise Performance standards and NYC DOB requirements.

Client: Project Renewal.
Agency: NYC HHAP, NYC HPD.
Program: residential (affordable, senior/AIRS, and supportive housing), rooftop greenhouse (1,500 SF).
Size: 88,000 SF, 117 units (80 0br, 25 1br, 12 2br),13 stories.
Team: Landscape Design: Bille Cohen. Lighting Design: Jim Conti Lighting Design. Structural Engineering: Silman. Mechanical Engineering: Rosenthal Engineering. Civil Engineering: Key Civil Engineering. General Contractor: Bruno Frustaci Contracting.
Photography: Michael Grimm Photography. Awards: AIA New York, Merit Award for Residential, 2024.

Previous
Previous

Earl Monroe New Renaissance Basketball High School

Next
Next

Lexington Avenue Shelter