ESKW/Architects was selected by the New York City School Construction Authority (NYC SCA) to provide the design of the 23,000 SF 3K Center public school in Long Island City. Originally built in 1928, the two-story trapezoidal shaped formerly industrial building was renovated in 2020.

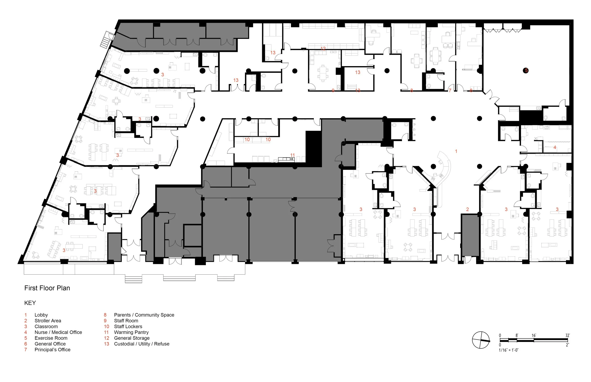
With two street exposures within the demised space, the nine (9) classrooms were located at the perimeter of the school’s leased space. While this provided ample daylight for the students, it created a lengthy circulation corridor which inspired the design team to model the interiors as a solar system with nine planet classrooms. Along the corridor pathway, classrooms are painted with colors inspired by NASA’s colorized photographs of our solar system as seen within the Milky Way galaxy. The grand entry lobby serves as the center or sun and sets each little explorer on their way.

Additional program spaces include an exercise room, medical office, administrative suite, staff and community rooms, and a warming pantry. The new 3K Center will provide high quality early childhood education to the most rapidly growing neighborhood in New York City.

Client: New York City School Construction Authority. Program: institutional (educational).
Size: 23,000 SF, 1 story.
Team: Structural Engineering: Ysrael A. Seinuk. M/E/P: Loring Consulting Engineers. Civil Engineering: YU & Associates. Lighting Designer: Goldstick Studio.

3K Center: 444Q. Queens

Previous
Previous

3K Center: 523M

Next
Next

Ocean Wonders: Sharks!